top of page
Create Your First Project
Start adding your projects to your portfolio. Click on "Manage Projects" to get started
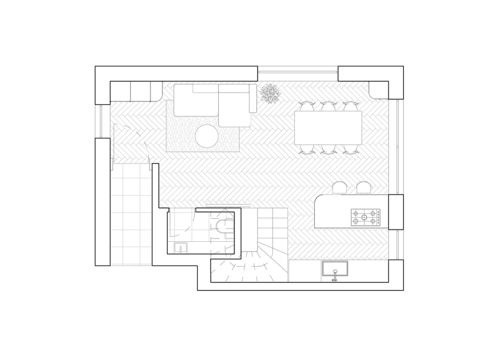
Second Nature
Project type
Interior architecture
Date
2023-
Location
Ljubljana, Slovenia
A playful interior for a daring, creative family with an affinity for nature and experimentation. The scheme centers on a light green, softly contoured kitchen with a hidden bar. A two-storey multipurpose core, around which the staircase circulates, anchors the layout, while curved storage elements soften the corners and contribute to a cohesive, engaging spatial experience.










bottom of page

